Обзор квартиры в "ЖК Заречье"
Предлагается 2-комнатная квартира в востребованном жилом комплексе "ЖК Заречье" 🏢.
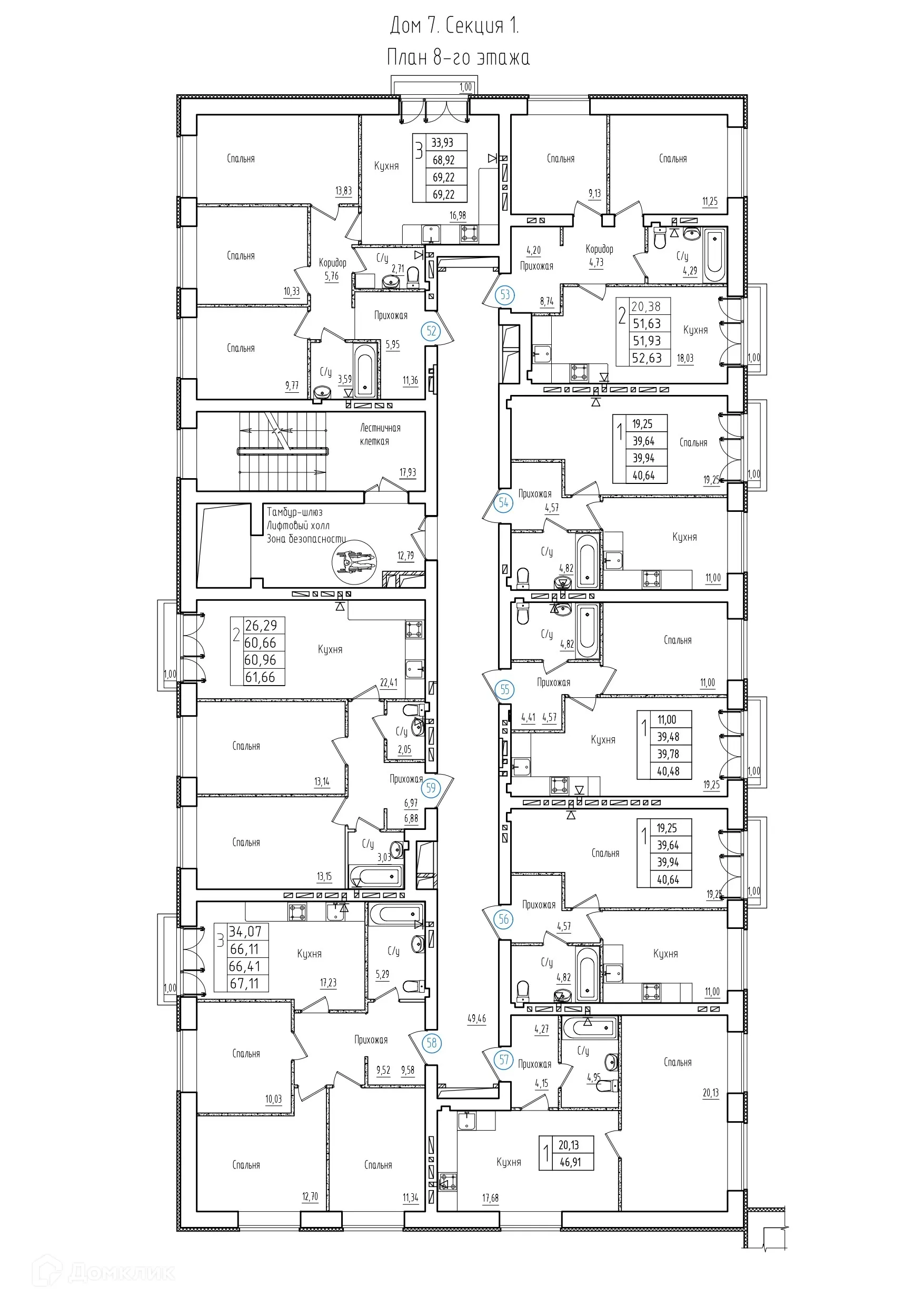
Квартира расположена на 8-м этаже 11-этажного дома.
Отличный вариант для семьи.
Продуманная планировка
- ✅ Общая площадь: 62 м².
- ✅ Просторная жилая площадь: 26.29 м².
- ✅ Кухня: 22.41 м² — идеальна для семейных ужинов.
Особенности квартиры
- 🔧 Вариант отделки: грубая отделка. Минимум грязных работ.
- 🌞 Большие окна наполняют помещения природным светом.
- 🌿 Класс жилья: Эконом — высокое качество строительства.
Финансы и ипотека
- 💳 Ипотека от 48 217 руб/мес.
- 🏦 Подходит под семейную и IT ипотеку.
- 🤝 Эскроу-счета гарантирует надежность.
Чтобы узнать подробности и проверить актуальную стоимость — свяжитесь с нами прямо сейчас! 📞
Характеристики новостройки в ЖК Заречье
- Номер квартиры: 59
- Вариант отделки: грубая отделка
- Общая площадь: 62 м²
- Жилая площадь: 26.29 м²
- Площадь кухни: 22.41 м²
- Класс жилья: Эконом
- Количество комнат: 2-комнатная квартира
- Этаж: 8
- Этажность дома: 11
Полезная информация о ЖК Заречье
Проектная декларация размещена в ЕИСЖС на сайте https://наш.дом.рф