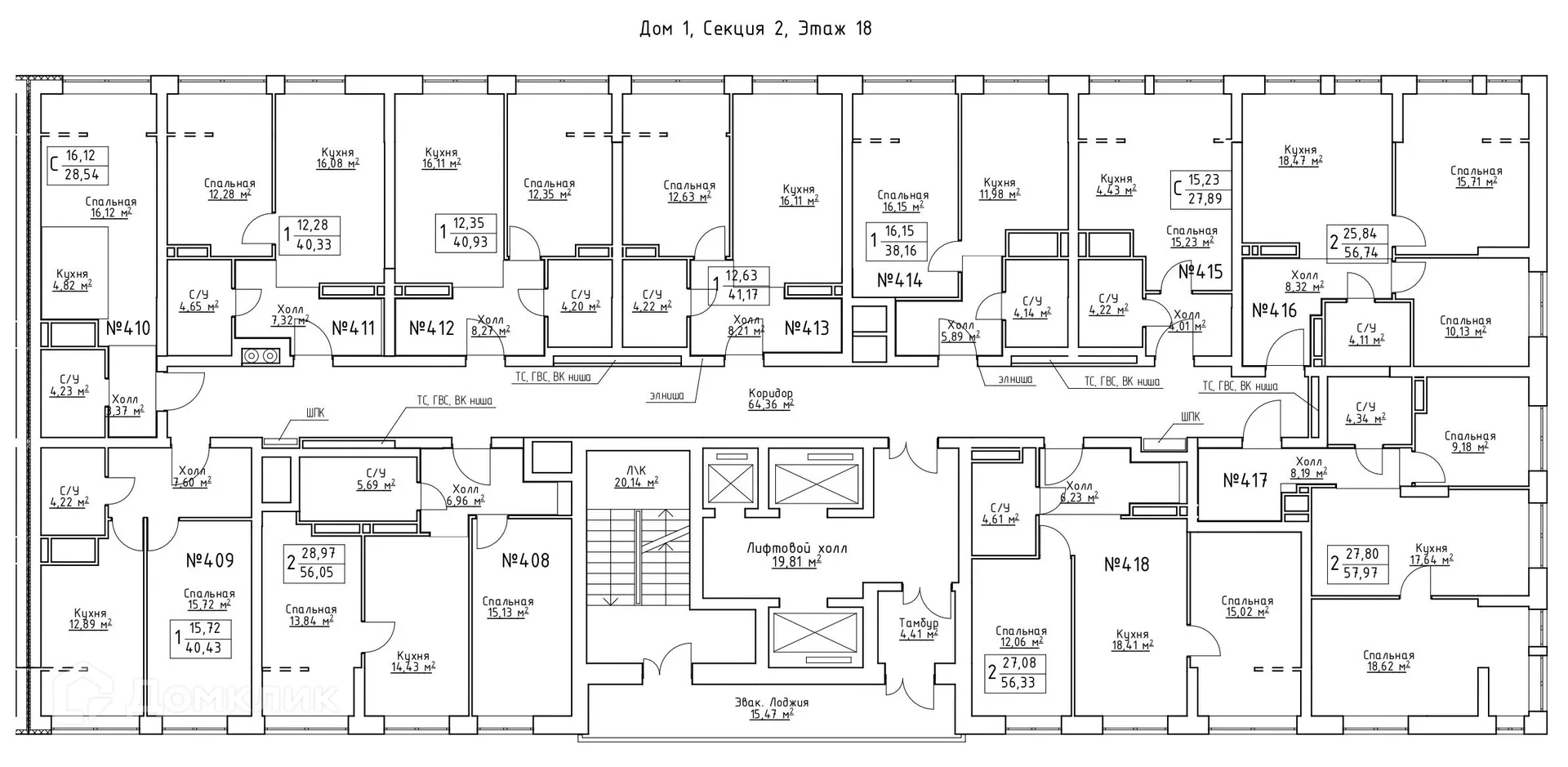
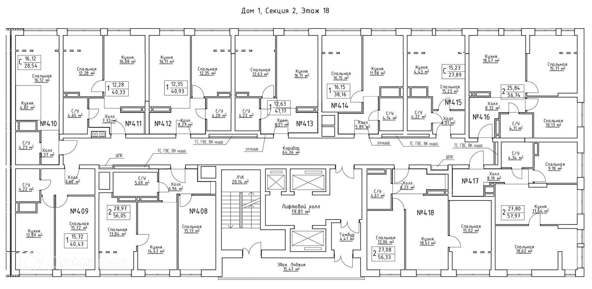
Другие планировки в ЖК Зеленый квартал

Планировка Студия в ЖК Зеленый квартал
30.1 м²

Студия

от 4 003 300 ₽

1 предложение

Смотреть планировку
Планировка 1 комн. в ЖК Зеленый квартал
42.7 м²

1-комнатная

от 5 337 500 ₽

2 предложения

Смотреть планировку
Планировка 2 комн. в ЖК Зеленый квартал
60.5 м²

2-комнатная

от 7 441 500 ₽

1 предложение

Смотреть планировку

Расположение

Срок сдачи: 2 кв. 2025 г.

Самара, Стара Загора, 333

Подробнее о ЖК

Срок сдачи: 2 кв. 2025 г.

30 - 78.4 м²

Площади квартир

25

Этажность

Комфорт

Класс жилья

2

Корпусов

кирпично-монолитный

Стены