Самара, Стара Загора, 333
Площадь
Жилая
Кухня
Отделка
Класс жилья
Комнат
Номер кв.
Этаж
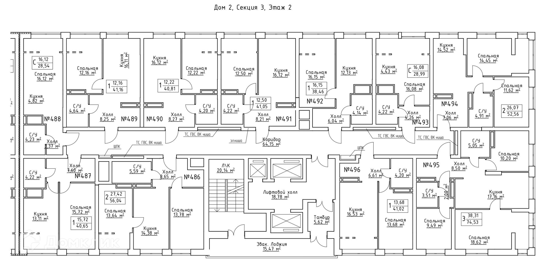
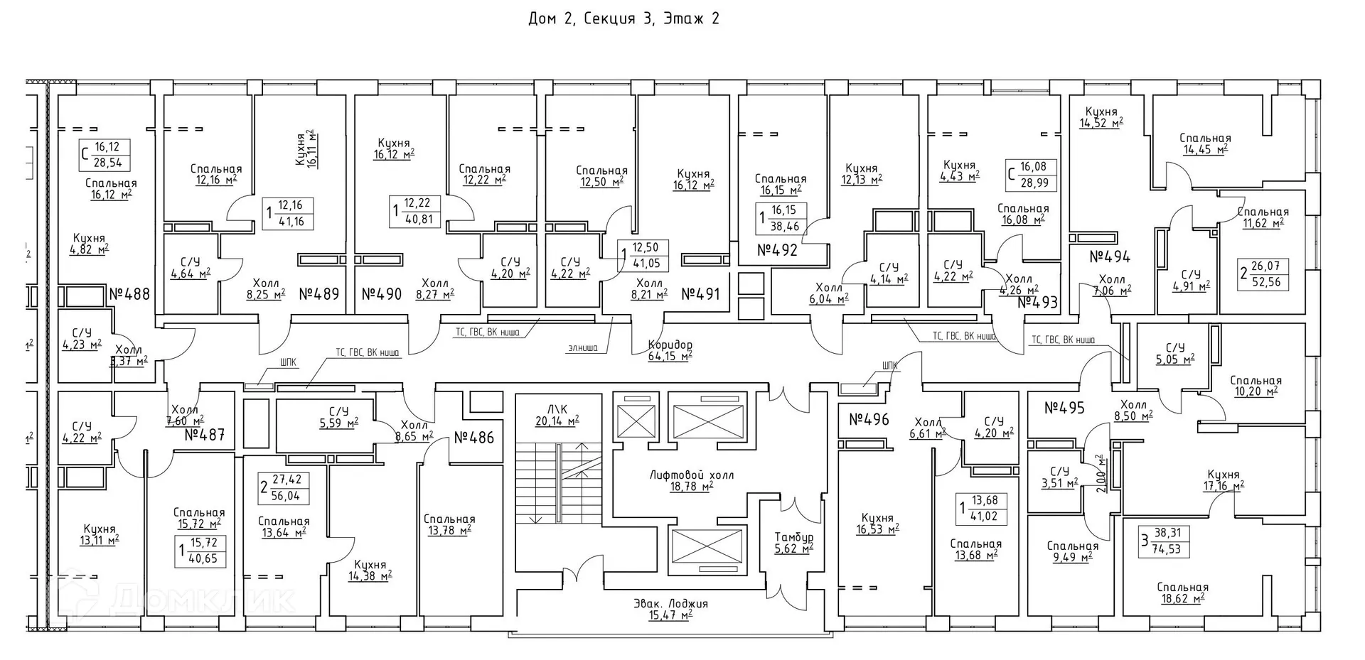
Доступна к покупке 3-комнатная квартира в востребованном жилом комплексе "ЖК Зеленый квартал" 🏢. Квартира расположена на 2-м этаже 25-этажного дома. Прекрасный выбор для комфортной жизни.
Чтобы узнать подробности и проверить актуальную стоимость — позвоните нам прямо сейчас! 📞
Проектная декларация размещена в ЕИСЖС на сайте https://наш.дом.рф ЖК «Зелёный квартал» Новый ЖК – это воплощение мечты о доме в благополучном районе современного города. «Зелёный квартал» отличается выгодной географией: соседствуя с одним из крупнейших парков Самары, новый ЖК включён при этом в развитую инфраструктуру мегаполиса и находится буквально в нескольких минутах от основных автомобильных магистралей. В ЖК «Зелёный квартал» представлены квартиры разнообразных планировочных решений – как типовых, так и современных функциональных. Высота потолка – 2.7 метра от стяжки пола. Современные экстерьерные решения в ЖК «Зелёный квартал» включают: подъезды нового поколения, с бесконтактным открытием входной двери. инклюзивные решения для малогабаритных групп населения. инженерные коммуникации, вынесенные за пределы квартиры, – для бесперебойного доступа коммунальных служб и большего удобства жителей. В закрытом от машин дворе ЖК «Зелёный квартал» мы проектируем уникальное пространство для игр и всестороннего развития детей разного возраста, а также отдыха взрослых. Детские площадки и площадки для воркаута обеспечены современным оборудованием и безопасным покрытием. В ЖК «Зелёный квартал» оборудуется также двухуровневый паркинг с классическими и двухуровневыми машиноместами, прямым доступом к лифтам и комфортным спуском на парковку прямиком из подъезда.
Срок сдачи: 2 кв. 2025 г.
Срок сдачи: 2 кв. 2025 г.
Площади квартир
Этажность
Класс жилья
Корпусов
Стены