Самара, 12-й м-н, Стара Загора, 249а
Обзор квартиры в "ЖК Дом у озера"
Доступна к покупке 1-комнатная квартира в современном жилом комплексе "ЖК Дом у озера" 🏢.
Квартира расположена на 17-м этаже 17-этажного дома.
Отличный вариант для инвестиций.
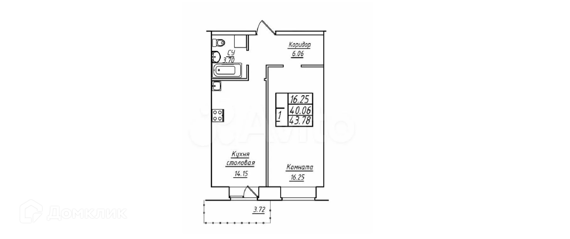
Функциональная планировка
- ✅ Общая площадь: 43.78 м².
- ✅ Светлая жилая площадь: - м².
- ✅ Кухня: - м² — эргономичное пространство.
Особенности квартиры
- 🔧 Вариант отделки: грубая отделка. Минимум грязных работ.
- 🌞 Увеличенные оконные проемы наполняют помещения естественным светом.
- 🌿 Класс жилья: Комфорт — современные технологии.
Выгодные условия покупки
- 💳 Ипотека от 42 485 руб/мес.
- 🏦 Доступны льготные программы господдержки.
- 🤝 Покупка напрямую от застройщика гарантирует спокойствие.
Чтобы узнать подробности и проверить актуальную стоимость — свяжитесь с нами прямо сейчас! 📞
Характеристики новостройки в ЖК Дом у озера
- Номер квартиры: 136
- Вариант отделки: грубая отделка
- Общая площадь: 43.78 м²
- Жилая площадь: - м²
- Площадь кухни: - м²
- Класс жилья: Комфорт
- Количество комнат: 1-комнатная квартира
- Этаж: 17
- Этажность дома: 17
Полезная информация о ЖК Дом у озера