Самара, 12-й м-н, Стара Загора, 249а
Обзор квартиры в "ЖК Дом у озера"
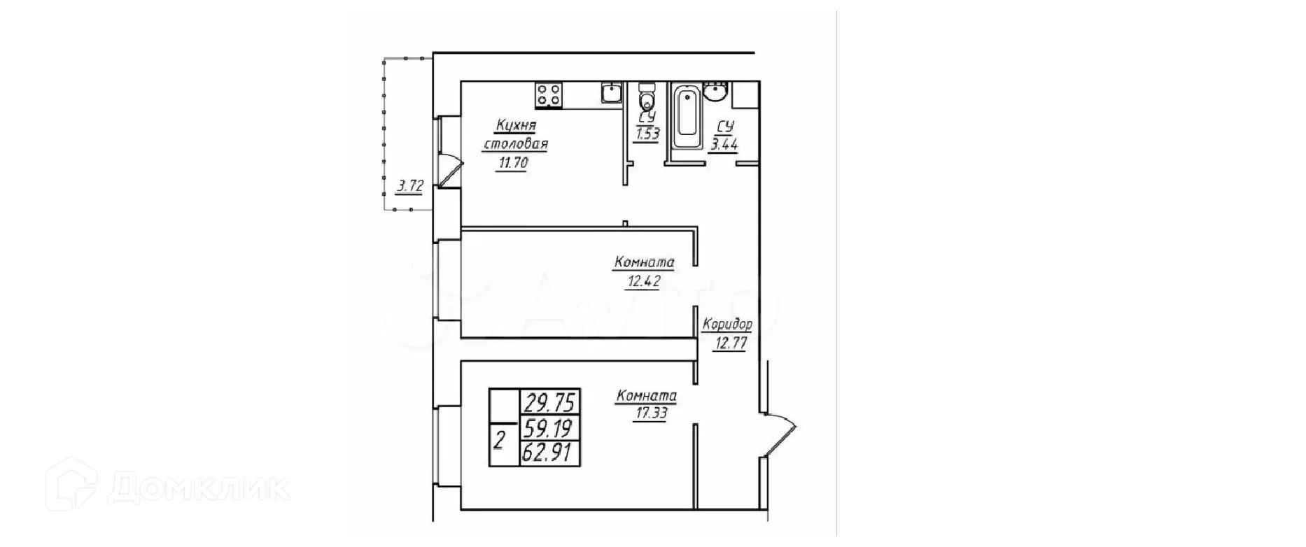
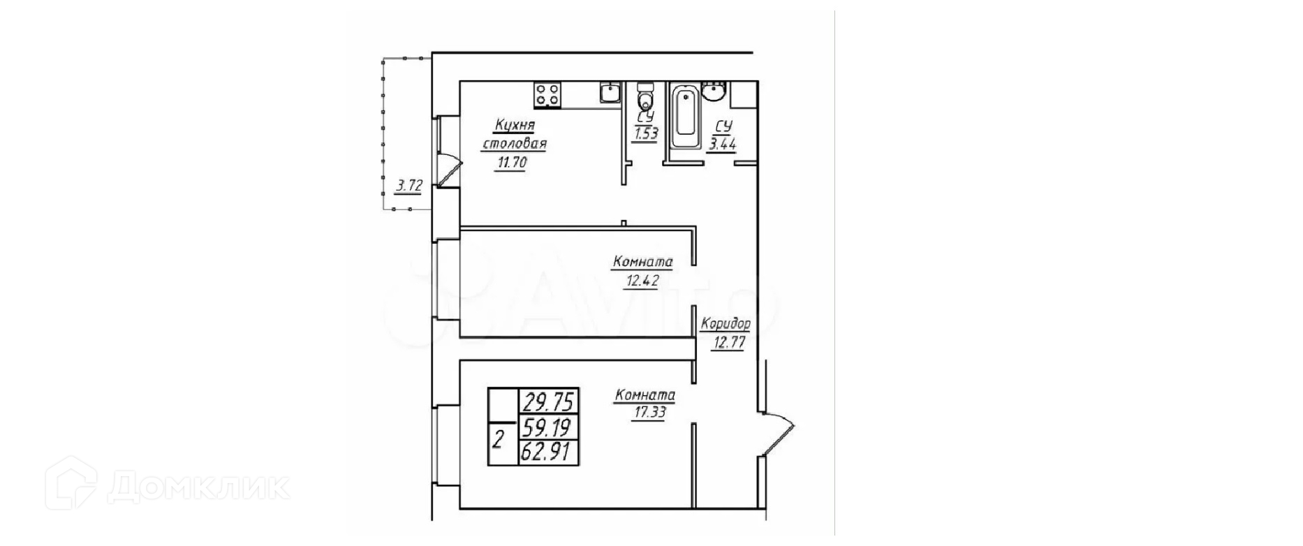
Продается 2-комнатная квартира в новом жилом комплексе "ЖК Дом у озера" 🏢.
Квартира расположена на 12-м этаже 17-этажного дома.
Прекрасный выбор для комфортной жизни.
Продуманная планировка
- ✅ Общая площадь: 62.91 м².
- ✅ Уютная жилая площадь: - м².
- ✅ Кухня: - м² — идеальна для семейных ужинов.
Особенности квартиры
- 🔧 Вариант отделки: грубая отделка. Готовая база для вашего интерьера.
- 🌞 Панорамное остекление наполняют помещения естественным светом.
- 🌿 Класс жилья: Комфорт — высокое качество строительства.
Выгодные условия покупки
- 💳 Ипотека от 57 968 руб/мес.
- 🏦 Доступны льготные программы господдержки.
- 🤝 Покупка напрямую от застройщика гарантирует спокойствие.
Для бесплатного бронирования и проверить актуальную стоимость — свяжитесь с нами прямо сейчас! 📞
Характеристики новостройки в ЖК Дом у озера
- Номер квартиры: 98
- Вариант отделки: грубая отделка
- Общая площадь: 62.91 м²
- Жилая площадь: - м²
- Площадь кухни: - м²
- Класс жилья: Комфорт
- Количество комнат: 2-комнатная квартира
- Этаж: 12
- Этажность дома: 17
Полезная информация о ЖК Дом у озера