Описание квартиры в "ЖК Жилой район "Волгарь""
Продается 2-комнатная квартира в востребованном жилом комплексе "ЖК Жилой район "Волгарь"" 🏢.
Квартира расположена на 2-м этаже 17-этажного дома.
Прекрасный выбор для комфортной жизни.
Продуманная планировка
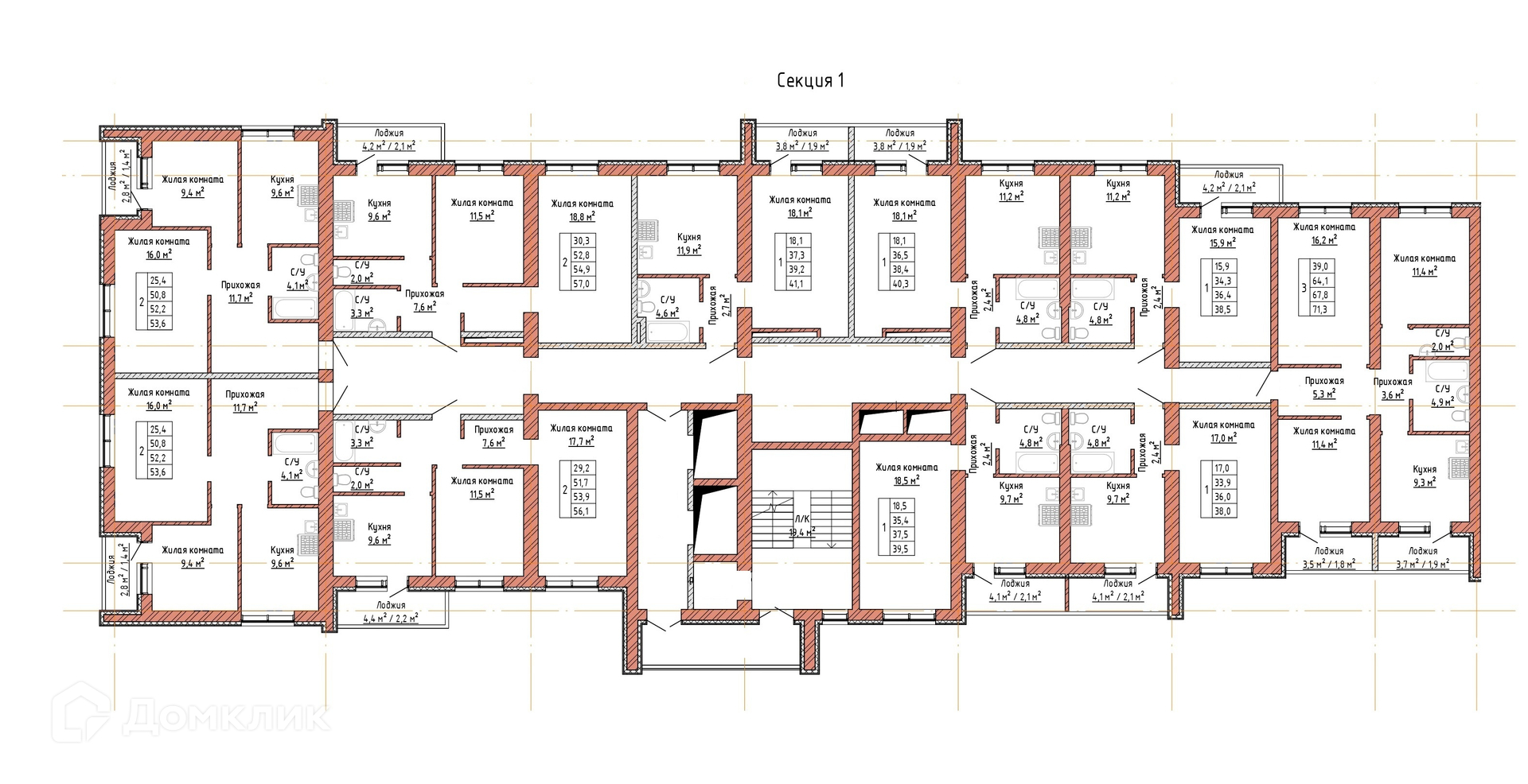
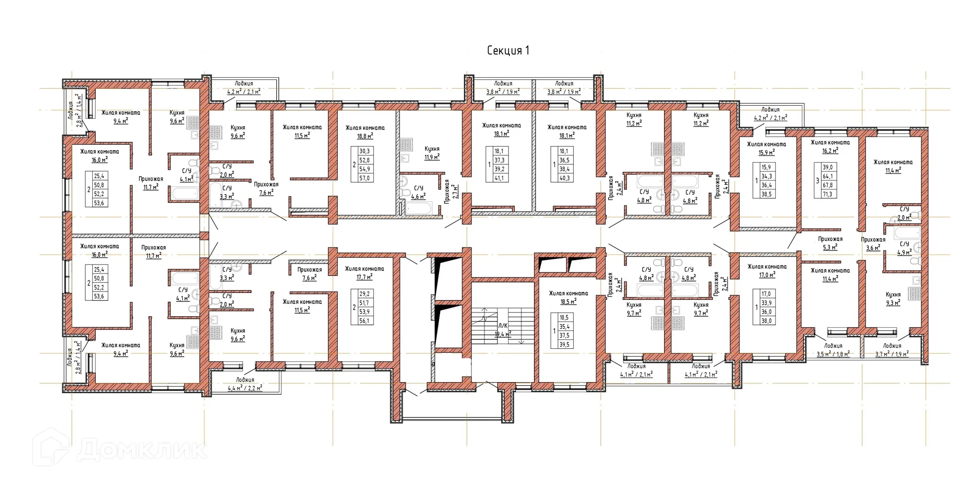
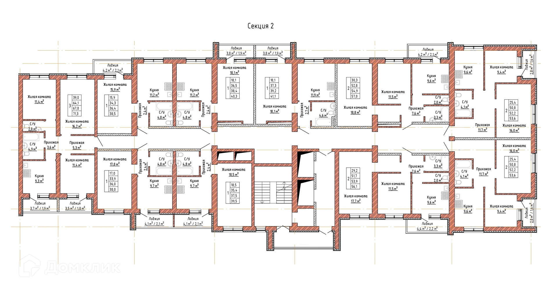
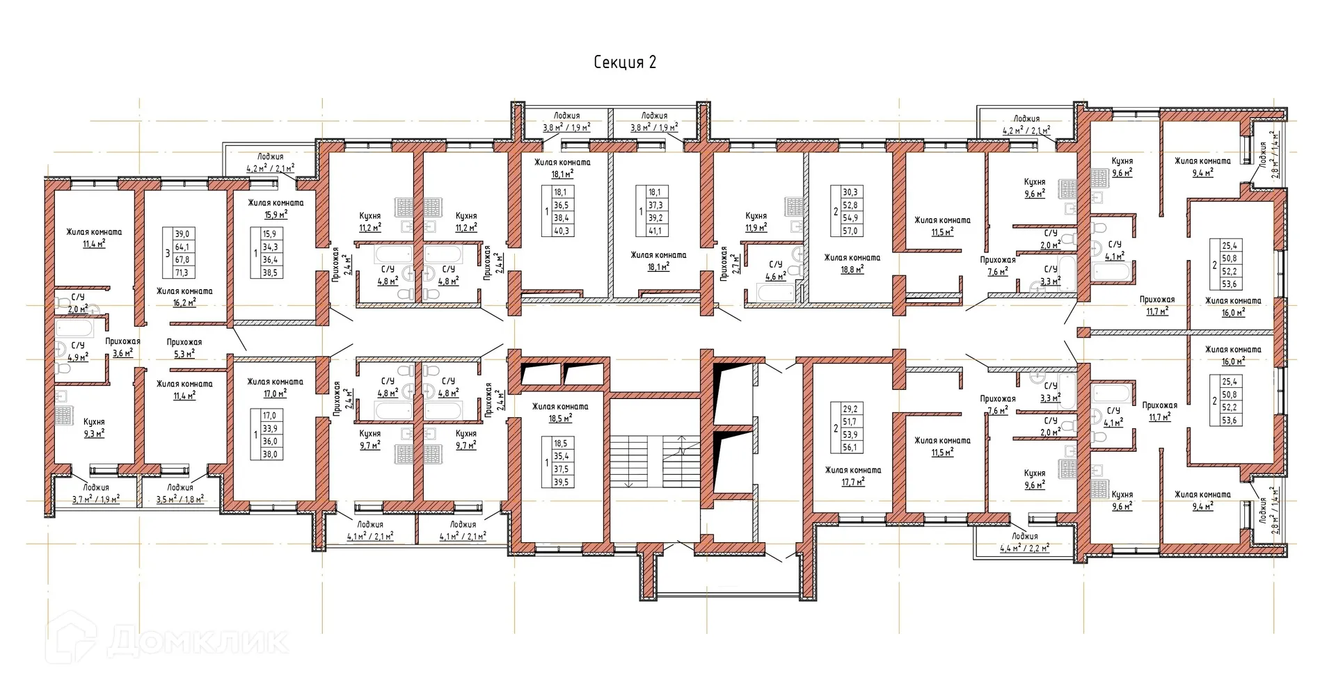
- ✅ Общая площадь: 52.2 м².
- ✅ Светлая жилая площадь: 25.5 м².
- ✅ Кухня: 9.6 м² — идеальна для семейных ужинов.
Особенности квартиры
- 🔧 Вариант отделки: без ремонта. Минимум грязных работ.
- 🌞 Большие окна наполняют помещения естественным светом.
- 🌿 Класс жилья: Эконом — современные технологии.
Выгодные условия покупки
- 💳 Ипотека от 40 220 руб/мес.
- 🏦 Доступны льготные программы господдержки.
- 🤝 Эскроу-счета гарантирует спокойствие.
Чтобы забронировать эту квартиру бесплатно и проверить актуальную стоимость — свяжитесь с нами прямо сейчас! 📞
Характеристики новостройки в ЖК Жилой район "Волгарь"
- Номер квартиры: 12
- Вариант отделки: без ремонта
- Общая площадь: 52.2 м²
- Жилая площадь: 25.5 м²
- Площадь кухни: 9.6 м²
- Класс жилья: Эконом
- Количество комнат: 2-комнатная квартира
- Этаж: 2
- Этажность дома: 17
Полезная информация о ЖК Жилой район "Волгарь"