Обзор квартиры в "ЖК по ул Пятая линия"
Доступна к покупке 1-комнатная квартира в востребованном жилом комплексе "ЖК по ул Пятая линия" 🏢.
Квартира расположена на 14-м этаже 17-этажного дома.
Прекрасный выбор для инвестиций.
Продуманная планировка
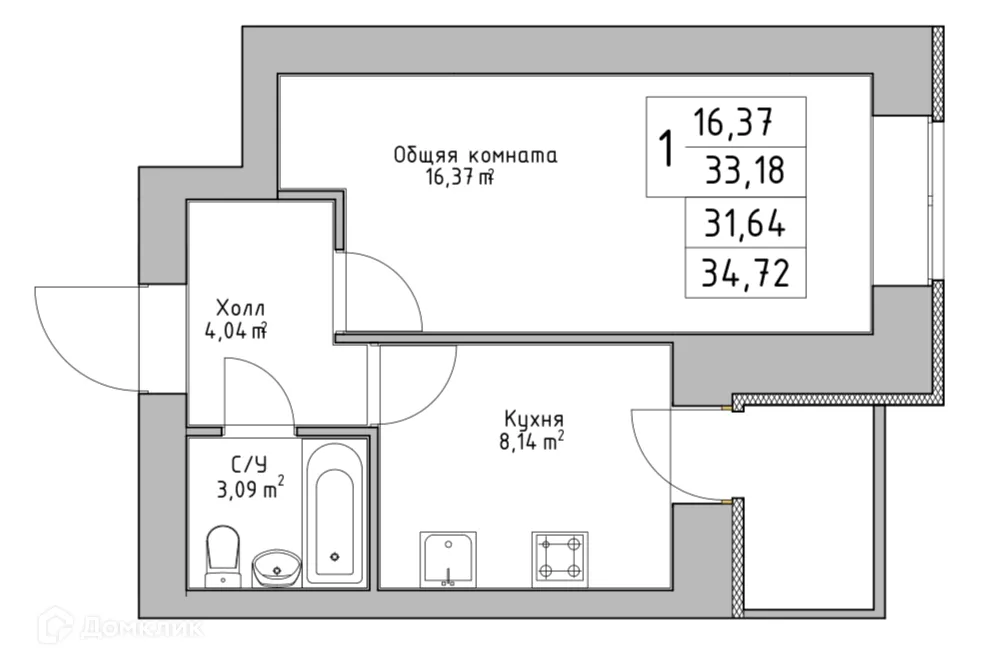
- ✅ Общая площадь: 33.18 м².
- ✅ Светлая жилая площадь: 16.37 м².
- ✅ Кухня: 8.14 м² — эргономичное пространство.
Особенности квартиры
- 🔧 Вариант отделки: грубая отделка. Это позволит вам сразу приступить к ремонту.
- 🌞 Панорамное остекление наполняют помещения природным светом.
- 🌿 Класс жилья: Эконом — современные технологии.
Выгодные условия покупки
- 💳 Ипотека от 39 527 руб/мес.
- 🏦 Подходит под семейную и IT ипотеку.
- 🤝 Эскроу-счета гарантирует надежность.
Чтобы узнать подробности и проверить актуальную стоимость — позвоните нам прямо сейчас! 📞
Характеристики новостройки в ЖК по ул Пятая линия
- Номер квартиры: 110
- Вариант отделки: грубая отделка
- Общая площадь: 33.18 м²
- Жилая площадь: 16.37 м²
- Площадь кухни: 8.14 м²
- Класс жилья: Эконом
- Количество комнат: 1-комнатная квартира
- Этаж: 14
- Этажность дома: 17
Полезная информация о ЖК по ул Пятая линия