Описание квартиры в "ЖК КВАТРО"
В продаже 2-комнатная квартира в востребованном жилом комплексе "ЖК КВАТРО" 🏢.
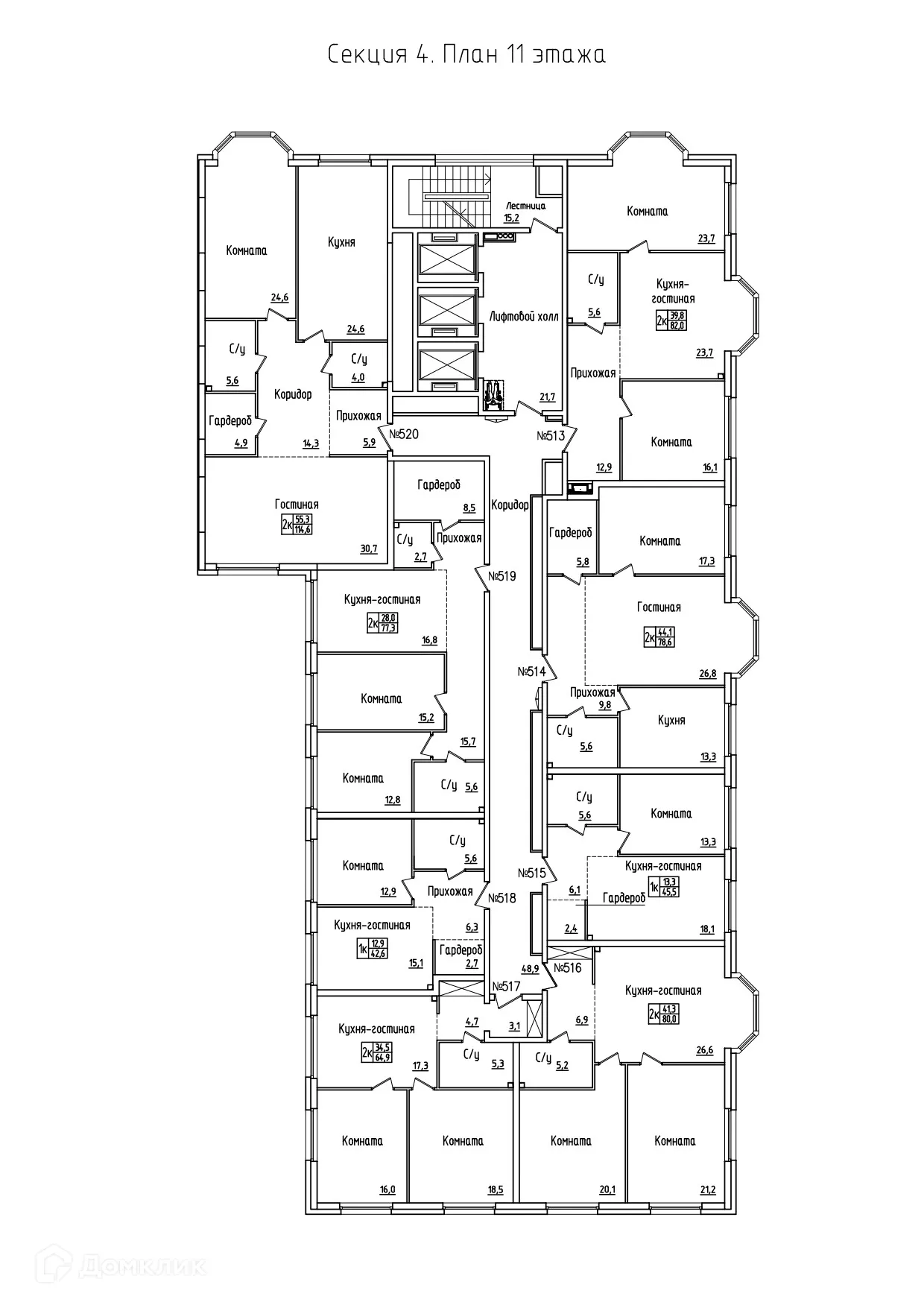
Квартира расположена на 12-м этаже 25-этажного дома.
Прекрасный выбор для инвестиций.
Функциональная планировка
- ✅ Общая площадь: 82 м².
- ✅ Просторная жилая площадь: 39.8 м².
- ✅ Кухня: 23.7 м² — место для кулинарных шедевров.
Особенности квартиры
- 🔧 Вариант отделки: грубая отделка. Это позволит вам сразу приступить к ремонту.
- 🌞 Большие окна наполняют помещения естественным светом.
- 🌿 Класс жилья: Бизнес — высокое качество строительства.
Выгодные условия покупки
- 💳 Ипотека от 115 734 руб/мес.
- 🏦 Доступны льготные программы господдержки.
- 🤝 Безопасная сделка гарантирует спокойствие.
Для бесплатного бронирования и проверить актуальную стоимость — свяжитесь с нами прямо сейчас! 📞
Характеристики новостройки в ЖК КВАТРО
- Номер квартиры: 521
- Вариант отделки: грубая отделка
- Общая площадь: 82 м²
- Жилая площадь: 39.8 м²
- Площадь кухни: 23.7 м²
- Класс жилья: Бизнес
- Количество комнат: 2-комнатная квартира
- Этаж: 12
- Этажность дома: 25
Полезная информация о ЖК КВАТРО
Проектная декларация размещена в ЕИСЖС на сайте https://наш.дом.рф