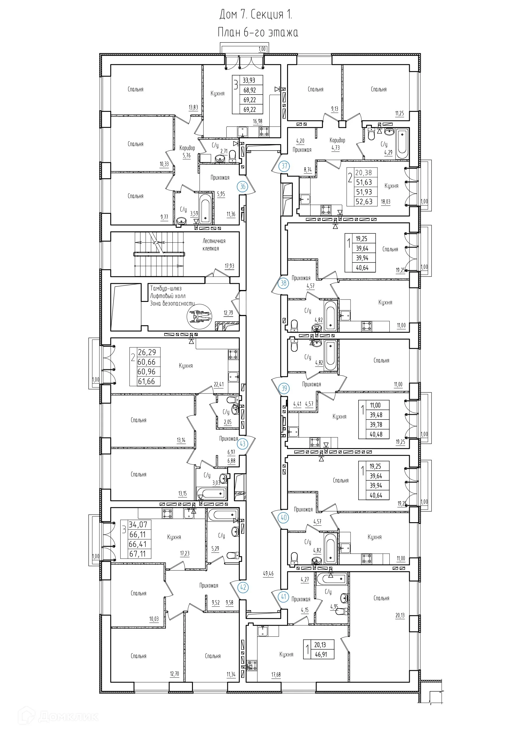
Обзор квартиры в "ЖК Заречье"
Доступна к покупке 3-комнатная квартира в востребованном жилом комплексе "ЖК Заречье" 🏢.
Квартира расположена на 6-м этаже 11-этажного дома.
Прекрасный выбор для комфортной жизни.
Функциональная планировка
- ✅ Общая площадь: 71.2 м².
- ✅ Просторная жилая площадь: 33.93 м².
- ✅ Кухня: 16.98 м² — идеальна для семейных ужинов.
Особенности квартиры
- 🔧 Вариант отделки: грубая отделка. Это позволит вам сразу приступить к ремонту.
- 🌞 Увеличенные оконные проемы наполняют помещения естественным светом.
- 🌿 Класс жилья: Эконом — благоустроенная территория.
Финансы и ипотека
- 💳 Ипотека от 54 347 руб/мес.
- 🏦 Доступны льготные программы господдержки.
- 🤝 Безопасная сделка гарантирует спокойствие.
Чтобы узнать подробности и зафиксировать цену — свяжитесь с нами прямо сейчас! 📞
Характеристики новостройки в ЖК Заречье
- Номер квартиры: 36
- Вариант отделки: грубая отделка
- Общая площадь: 71.2 м²
- Жилая площадь: 33.93 м²
- Площадь кухни: 16.98 м²
- Класс жилья: Эконом
- Количество комнат: 3-комнатная квартира
- Этаж: 6
- Этажность дома: 11
Полезная информация о ЖК Заречье
Проектная декларация размещена в ЕИСЖС на сайте https://наш.дом.рф